BHD22,000
2 Bathrooms
1,507 sqft / 140 sqm
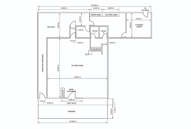
RETAIL SPACES FOR SALE IN ADLIYAA running Indian and Chinese cuisine restaurant for sale with equipment and furniture is available for sale in Adliya Block 326 on Hasan Bin Thabit Avenue.
The restaurant is well organized and set up with high-end interiors and fixtures. fully equipped kitchen, toilets for men and women, large storage and preparation area, and large freezers.
Restaurant Features:
• Prime location
• With running CR
• Central AC
• Toilets
• Cash counter
• Fully equipped kitchen
• Family section
• Staff entrance
• Goods delivery point
• Public car parks
• Preparation area
• Chiller and freezer
***Monthly rent BD. 650***
CENTURY 21 Real Estate is recognized as a leader in e-marketing and has received numerous awards. The Sales & Management team is committed to providing the highest standards of service and quality to all our owners, clients & tenants.
Call Century 21 Bahrain today for an appointment on 17212000 / 39975430.
A running restaurant for sale with equipments
The restaurant is well organized and set up with high-end interiors and fixtures. fully equipped kitchen, toilets for men and women, large storage and preparation area, and large freezers.
Restaurant Features:
• Prime location
• With running CR
• Central AC
• Toilets
• Cash counter
• Fully equipped kitchen
• Family section
• Staff entrance
• Goods delivery point
• Public car parks
• Preparation area
• Chiller and freezer
***Monthly rent BD. 650***
CENTURY 21 Real Estate is recognized as a leader in e-marketing and has received numerous awards. The Sales & Management team is committed to providing the highest standards of service and quality to all our owners, clients & tenants.
Call Century 21 Bahrain today for an appointment on 17212000 / 39975430.
Property details
Property Type
Retail
Property Size
1,507 sqft / 140 sqm
Bathrooms
2
Available from
10 Sep 2025
Amenities
Furnished
Networked
Central A/C
Dining in building
Location

Provided by
SuperAgent
Minguel Jacob Fernandes
Century 21 Bahrain
See agency properties (108)Response time
within 15 minutes
Experience
19 years
Languages
English, Arabic, Hindi
Regulatory information
Recommended for you
